apricity3d.com
HOME
PORTFOLIO
Exteriors
Interiors
Pools & Spas
OUR CAPABILITIES
Geolocation Modeling
3D Modeling
Material Testing
CONTACT US
apricity3d@gmail.com
1-512-755-7559
Melissa Master Closet
CLICK HERE FOR CONTAINER STORE VERSION
VERSION 3 CAD FILE
Version 3 Master Closet
Download
SLIDESHOW WITH CAD IMAGES
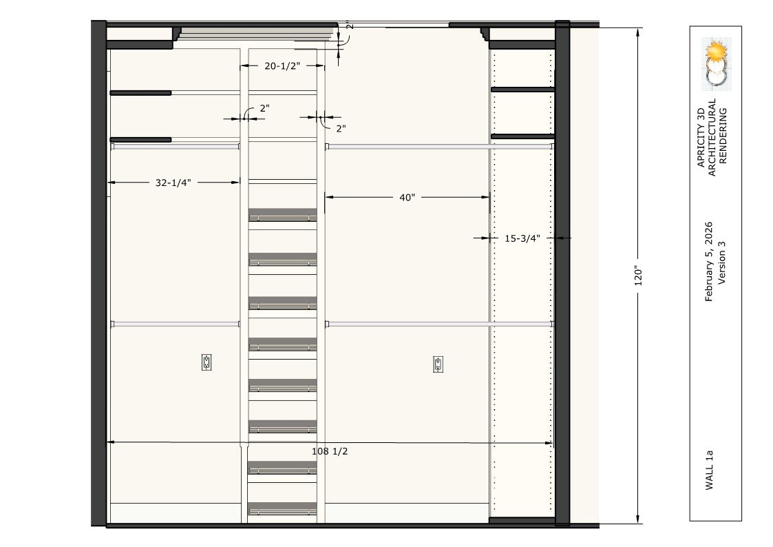
WALL 1a
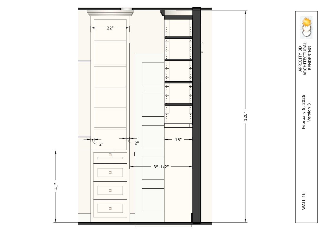
WALL 1b
WALL 1a & 1b
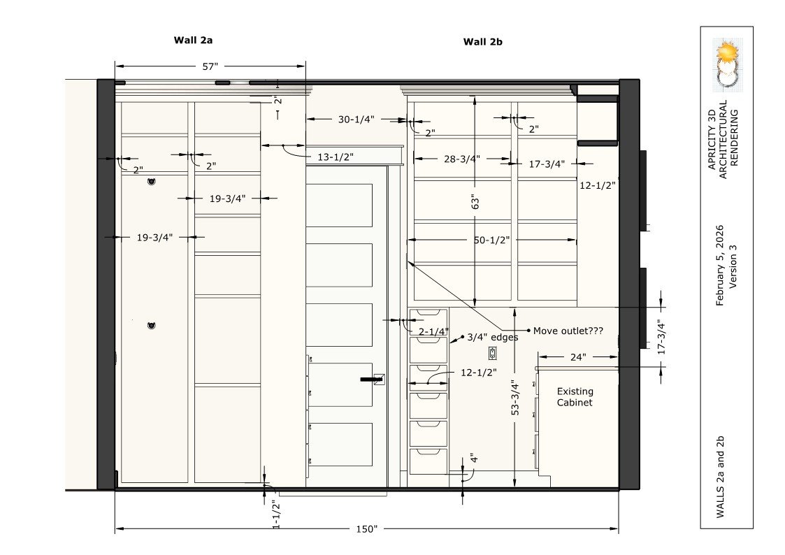
WALL 2a & 2b
WALL 2a & 2b
WALL 3
WALL 3
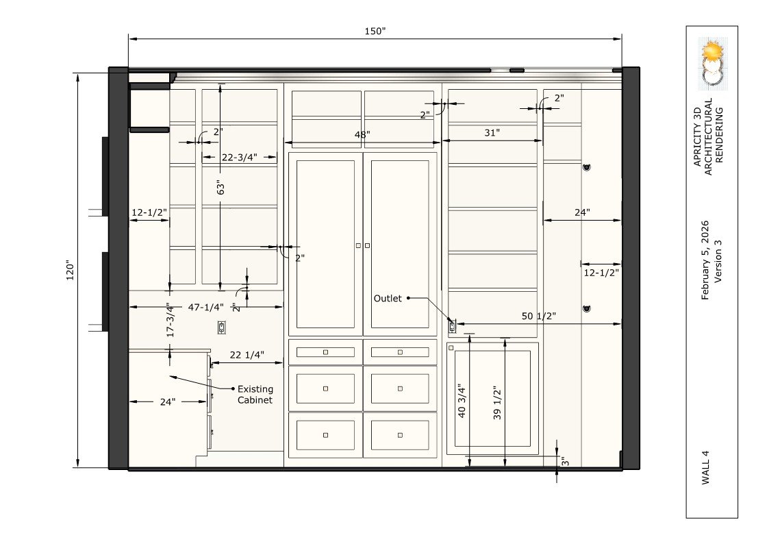
WALL 4
WALL 4
SLIDESHOW WITH ENTOURAGE
Wall 1
Wall 1a
Wall 2
Wall 2a
Wall 3
Wall 4
Wall 4
Wall 4
Wall 4
VIDEO
ROOM PHOTOS
Before
Current Wall 1a
Current Wall 1b
Current Wall 2a
Current Wall 2b
Current Wall 3
Current Wall 4
Scuttle